Početna
Tipovi kuća
Tehnički opis
Cene kuća
Reference
Kontakt
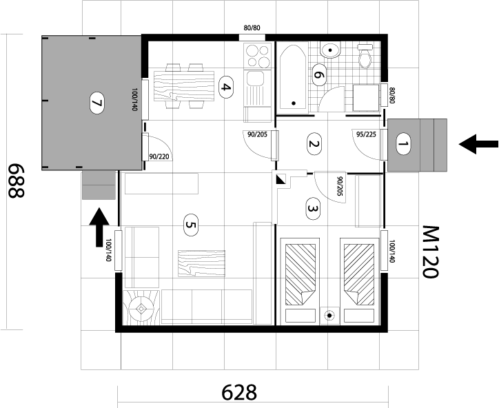
Montažna kuća Tip 44b
Model
Tip 44b
Broj soba
3
Bruto površina
50.38 m2
Neto površina
45.46 m2
Br.
Prostorija
Površina
1
Ulaz
2.02 m2
2
Predsoblje
2.40 m2
3
Spavaća soba
8.26 m2
4
Kuhinja
8.70 m2
5
Dnevna soba
12.60 m2
6
Kupatilo
4.08 m2
7
Terasa
7.40 m2